website traffic statistics

Read This Also

austin based north arrow studio has raised this glazed house on stilts to offer its residents elevated views mies van der rohe house on stilts farnsworth house

austin based north arrow studio has raised this glazed house on stilts to offer its residents elevated views mies van der rohe house on stilts farnsworth house

redcliffe seabrae hotel photos facebook

redcliffe seabrae hotel photos facebook

timeline carousel first health timeline positive change

timeline carousel first health timeline positive change

redcliffe volunteer hub moreton bay regional council

redcliffe volunteer hub moreton bay regional council

building design and drawing book unique robert smith and redcliffe towers case study building building design design designs to draw

building design and drawing book unique robert smith and redcliffe towers case study building building design design designs to draw

pin on lgbt centre mood board

pin on lgbt centre mood board

redcliffe square white estates refurb

redcliffe square white estates refurb

6 redcliffe manor skelmorlie pa17 5ea corum property

6 redcliffe manor skelmorlie pa17 5ea corum property

psoas muscle lld 的圖片搜尋結果 psoas muscle upper cervical chiropractic muscle anatomy

psoas muscle lld 的圖片搜尋結果 psoas muscle upper cervical chiropractic muscle anatomy

pin on somatic education

pin on somatic education

pin on arch architecture rendering real time

pin on arch architecture rendering real time

pin on random

pin on random

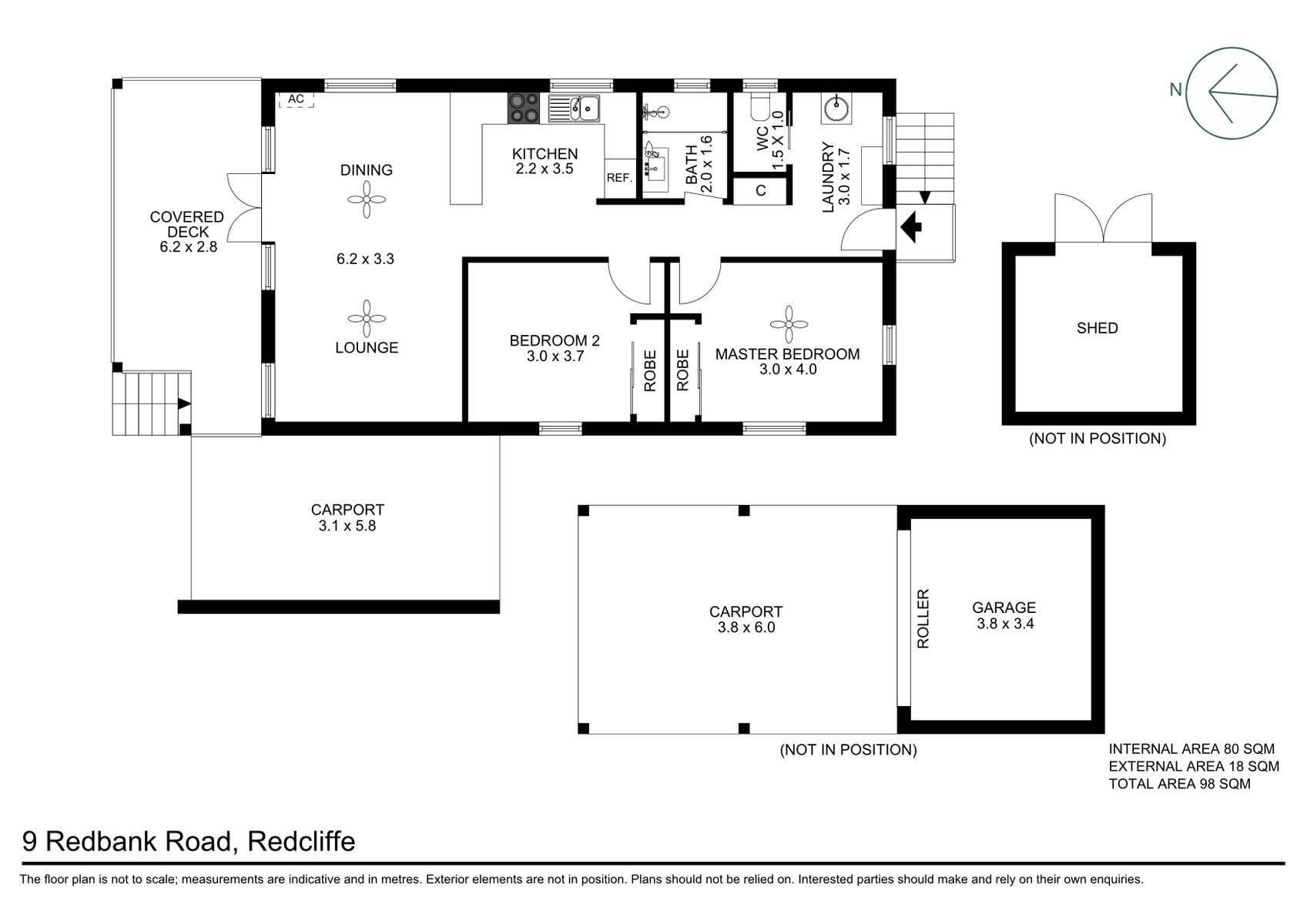
redcliffe area qld property for sale gumtree australia free local classifieds

redcliffe area qld property for sale gumtree australia free local classifieds

office to rent seventy redcliff street bs1 6al cbre

office to rent seventy redcliff street bs1 6al cbre

901 30 32 prince edward parade redcliffe waterfront properties redcliffe

901 30 32 prince edward parade redcliffe waterfront properties redcliffe

308 victoria avenue redcliffe qld 4020 house for sale homely

308 victoria avenue redcliffe qld 4020 house for sale homely

redcliffe gardens london sw10 2 bedroom flat for sale 51429431 primelocation

redcliffe gardens london sw10 2 bedroom flat for sale 51429431 primelocation

medieval couches google search sofa reupholstery style settee vintage sofa

medieval couches google search sofa reupholstery style settee vintage sofa

2 bed flat for sale in redcliffe square chelsea sw10 zoopla

2 bed flat for sale in redcliffe square chelsea sw10 zoopla

12 70 john street redcliffe qld 4020 coronis

12 70 john street redcliffe qld 4020 coronis

8 redcliffe street palmerston home by holly

8 redcliffe street palmerston home by holly

diy upholstered headboard with nailhead trim with images diy bed headboard headboard shapes diy headboard upholstered

diy upholstered headboard with nailhead trim with images diy bed headboard headboard shapes diy headboard upholstered

801 81 sutton street redcliffe

801 81 sutton street redcliffe

35 83 marine parade redcliffe qld 4020 unit for sale homely

35 83 marine parade redcliffe qld 4020 unit for sale homely

You May Like